Undoubtedly one of the finest properties on the island of Phuket, Villa Mayavee is a true architectural gem.
This luxury private villa offers a contemporary home away from home set amidst the incredible lush forest on a secluded peninsula.
Villa Mayavee is located on the west coast of Phuket, at Waterfall Bay on Kamala’s Millionaire’s Mile.
Situated in an exclusive community, it is secluded from the crowded popular tourist sites, but also in close proximity to the island’s best beaches.
The popular white sand beaches of Patong, Kamala, and Surin are a close distance, providing opportunities for guests to explore the island’s natural beauty while also staying close to the villa.
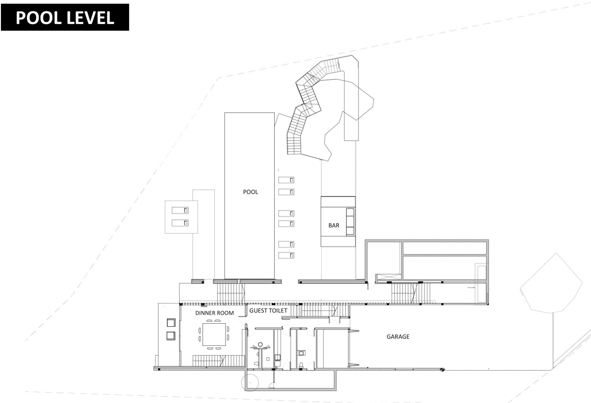
The entire property encompasses 10,200 square meters of land, with the main building occupying 2,400 square meters of space. The building is a unique Z-style structure where guests are welcomed into a stone hallway upon arrival and directed up to a spiral staircase leading to the living areas and separate wings.
Surrounding the property is a lush, tropical jungle that seems to embrace the villa. Both ocean and mountain views are seen from every angle of the rooms, as well as the outdoor lounge spaces. Floor to ceiling glass doors and windows welcome natural light to seep through, creating immaculate spaces for rest and relaxation.
There are generally two wings to the villa – the guest wing, where 3 suites, the gym, and a pool are situated; and the master wing, where the master suite is located and separated from the rest of the guest rooms.
The master wing is a private space that’s separated from the rest of the building by the kitchen and dining areas.
It features an impressive dressing area, its own private pool, a library, and an office. The suite is a private retreat all on its own, which makes for the perfect accommodation for a couple while the rest of the family or friends enjoy their time around the rest of the property.
This true architectural masterpiece brings the best of the modern world into the natural arena of Phuket’s beautiful tropical forest, while also offering incredible ocean views of the Andaman.




