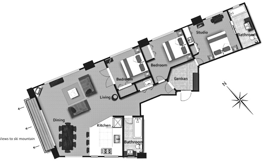
The Freshwater is a stylish block of boutique apartments in upper Hirafu village, offering luxury accommodation from studio apartments through to 3-bedroom penthouses, a total of 11 units.
At-home entertainment is assured with free wireless internet, Bose speakers with iPod dock, flatscreen TV and DVD player and satellite TV with English channels.
The Freshwater also offers guests a free shuttle bus service between the apartments and ski lifts.
The custom designed kitchens have premium Miele appliances and full size refrigerator.
The living rooms have large comfortable lounges around a warm fireplace to relax after a long day skiing.
The studios have access to shared laundry facilities downstairs with separate washer and dryer and each apartment has is own laundry facilities with separate washer and dryer.
中文 (中国)






















